$8,600,000
$10.14/sq ft · 3 days on market



(Sign-in required)
(Sign-in required)
(Sign-in required)
(Sign-in required)
(Sign-in required)
(Sign-in required)
(Sign-in required)
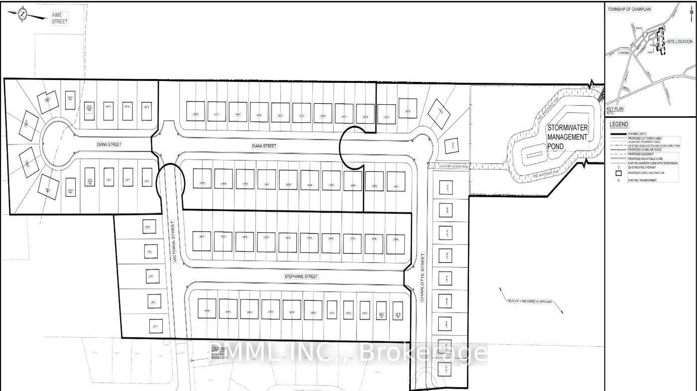
Prime 114-unit residential development opportunity, located near Highway 117 in L'Orignal, approximately 1 hour from Montreal and Ottawa. Preliminary subdivision approval in place for 30 single-family homes and 84 semi-detached units. Rare opportunity for a quick-start project in a growing corridor. The site has undergone extensive engineering review and approvals, including servicing, stormwater management, and supporting technical studies, positioning the project for execution. Note: The exact boundaries and area will be confirmed by a final survey. Located approximately one hour from Ottawa and Montreal, and minutes from key amenities including Walmart and Canadian Tire. (HST is in addition to the sale price.)
Listing provided by PMML INC.
Based on information from the Toronto Regional Real Estate Board (TRREB). All information deemed reliable but not guaranteed and should be independently verified. The accuracy of information is not guaranteed, has not been verified, and does not constitute professional advice.
IDX information is provided exclusively for consumers' personal, non-commercial use. It may not be used for any purpose other than identifying prospective properties consumers may be interested in purchasing or renting.
Sold and leased listing data is provided under the Virtual Office Website (VOW) data feed and is available only to registered users who have agreed to the Terms of Use. This data is for personal, non-commercial use only and may not be copied, redistributed, or retransmitted.
MLS®, REALTOR®, and the associated logos are certification marks owned by the Canadian Real Estate Association (CREA) and identify real estate professionals who are members of CREA.
This listing content is not intended to solicit properties already listed for sale or individuals who are currently under contract with a brokerage.
Data last updated: April 19, 2026 at 03:40 p.m.