Condos Homes logo
HomeNeighbourhoodsMapBlogBrokerage

Condos Homes

Red Bricks is your destination for pre-construction condos, townhouses, and homes. Access platinum listings, launching soon projects, and more.

Discover

  • Home
  • Neighbourhoods
  • Map
  • Blog
  • Developers
  • Cities

Company

  • About Us
  • Our Team
  • Contact
  • Assignments 2
  • Sample 2
  • Sample 3
  • An Explanation of Condo Maintenance Fees

Get in Touch

Have questions about a project? We're here to help.

Send a Message →
RE/MAX Premier Inc., Brokerage logo

Suzan McKenzie

RE/MAX Premier Inc., Brokerage

1885 Wilson Avenue Ste 200A, Toronto, Ontario, M9M1A2

Phone: 416-743-2000

Listing data is provided under license from the Toronto Regional Real Estate Board (TRREB). TRREB assumes no responsibility for the accuracy of the information contained herein. Data is updated periodically and may not reflect the most current market activity. Not intended to solicit buyers or sellers currently under contract. MLS®, REALTOR®, and the associated logos are certification marks owned by the Canadian Real Estate Association (CREA) and identify real estate professionals who are members of CREA.

© 2026 Condos Homes. All rights reserved.

Data powered by

Privacy PolicyTerms of Service
Home/DeerView Heights Towns/Unit 1 Type A

Unit 1 Type A

Available

$1,025,900

$681/sq ft · Resale avg $328/sqft

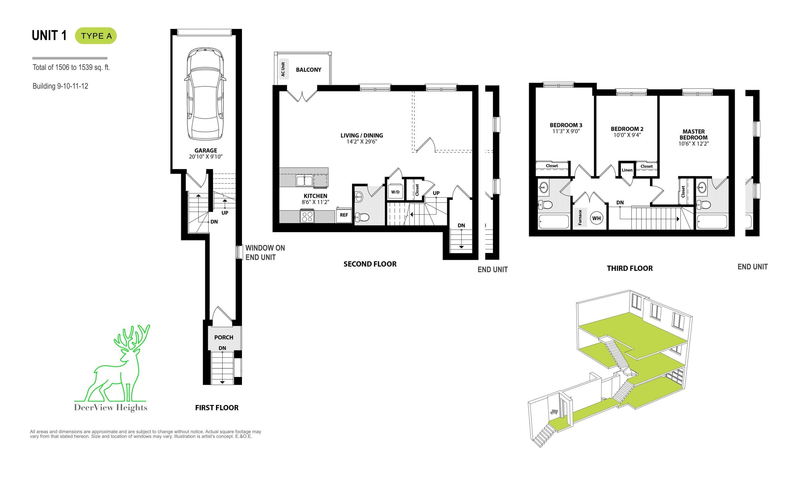
3 Bed·2.5 Bath·1506 sq ft·0·$681/sq ft

Bedrooms

3 Bed

Bathrooms

2.5

Size

1506 sq ft

Exposure

0

1 / 3Next: Unit 2 Type A
Unit 1 Type A Floor Plan at DeerView Heights Towns - 1506 sq.ft
Click to enlarge

Price History

$1.0M$1.0M$1.0M$1.0M$1.0MApr 22Jun 22

Launch Price

$1,025,900

$681/sq ft

Apr 6, 2022

Current Price

$1,025,900

$681/sq ft

▲$0 (+0.0%)
DatePricePrice / Sq Ft
Apr 6, 2022$1,025,900$681/sq ft
Jun 2, 2022$1,025,900$681/sq ft

Comparable Listings Nearby

Beta

Similar 3 Bed condo units nearby

For Sale3 listings
1725 Pure Springs Boulevard, Unit 13For SaleGood Match

$749,900

1725 Pure Springs Boulevard, Unit 13

3 Bed2 Bath1200-1399 sqft
0.7 km·Built 2018·46d on mkt
1852 Liatris DriveFor SaleGood Match

$859,900

1852 Liatris Drive

3 Bed3 Bath1500-2000 sqft
0.8 km·Built 2015·23d on mkt
2428 Tillings RoadFor SaleGood Match

$889,900

2428 Tillings Road

3 Bed3 Bath1100-1500 sqft
0.8 km·Built 2015·28d on mkt
For Rent6 listings
1695 Dersan Street, Unit 806For LeaseStrong Match

$3,000/mo

1695 Dersan Street, Unit 806

3 Bed3 Bath1400-1599 sqft
0.4 km·Built 2023·7d on mkt
2644 Castlegate CrossingFor LeaseGood Match

$3,000/mo

2644 Castlegate Crossing

3 Bed4 Bath1500-2000 sqft
0.3 km·Built 2023·3d on mkt
2638 Castlegate Crossing CrossingFor LeaseGood Match

$3,100/mo

2638 Castlegate Crossing Crossing

3 Bed4 Bath1500-2000 sqft
0.3 km·Built 2023·17d on mkt
2638 Castlegate CrossingFor LeaseGood Match

$2,995/mo

2638 Castlegate Crossing

3 Bed4 Bath1500-2000 sqft
0.3 km·Built 2023·20d on mkt
2573 Castlegate CrossingFor LeaseGood Match

$3,200/mo

2573 Castlegate Crossing

3 Bed4 Bath1500-2000 sqft
0.2 km·Built 2023·18d on mkt
2670 Castlegate CrossingFor LeaseGood Match

$3,200/mo

2670 Castlegate Crossing

3 Bed4 Bath1500-2000 sqft
0.3 km·Built 2023·9d on mkt

Deposit Structure

Deposit breakdown for this unit priced at $1,025,900

$20,000.00 On Signing $25,000.00 - 30 days $25,000.00 - 90 days $25,000.00 - 150 days

MilestoneRateAmountCumulativeDue Date
$20,000.00 On Signing$20,000.00$20,000$20,000On Signing
$25,000.00 - 30 days$25,000.00$25,000$45,000May 23, 2026
$25,000.00 - 90 days$25,000.00$25,000$70,000Jul 22, 2026
$25,000.00 - 150 days$25,000.00$25,000$95,000Sep 20, 2026
Total Deposit9.3%$95,000

1,506 sq ft × $0.00/sq ft = $0/mo

Monthly Mortgage (P&I)$4,350
Property Tax (est.)$556
Maintenance Fees$0
Total Monthly Cost$4,906
Est. Rental IncomeBeta−$2,650
Net Monthly Cost−$2,256

Down payment: $205,180 (20%) · Mortgage: $820,720

Estimates only. Property tax rate: 0.65%. Actual rates may vary. Consult a mortgage professional for accurate figures.

Rental estimate based on median of nearby comparable units (beta).

Building Market

For Sale
$328/sqft
4on MLS
18 avg DOM
$215K–$245K
Developer
$728/sqft
10available
$863K–$1.0M

Book a Consultation

Schedule a call or meeting to discuss Unit 1 Type A.

1
Date
2
Time
3
Details
4
Confirm

Select a date

Choose from available dates below

April 2026

Sun
Mon
Tue
Wed
Thu
Fri
Sat
Available
Unavailable